Industrial park sewage is characterized by its complex composition, high concentration, and toxicity. It mainly comes from production wastewater in industries such as chemical, pharmaceutical, electronic, and textile dyeing, containing pollutants like heavy metals, refractory organic substances, and high salinity. The sewage has significant fluctuations in water quality and quantity, making it more difficult to treat than domestic sewage.
The typical treatment process employs a combination of "categorical pretreatment + integrated biochemical + advanced treatment."

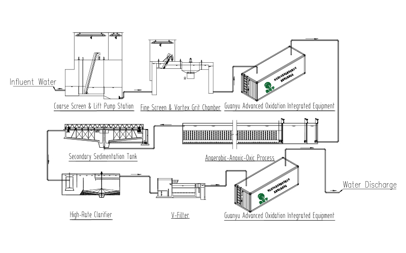
Process Flow Example

Process Flow Description for Urban Domestic Sewage Treatment
(1) Preliminary treatment: Sewage first passes through a coarse bar screen to remove large particulate debris, then enters a fine bar screen and vortex grit chamber via a lift pump to further intercept fine suspended solids and separate sand and gravel;
(2) Advanced oxidation: The Crown advanced oxidation integrated equipment is used for pretreatment to improve the B/C ratio of the wastewater, creating favorable conditions for subsequent biochemical treatment;
(3) Biological treatment: The A/A/O process (anaerobic-anoxic-aerobic) is used for simultaneous nitrogen removal and phosphorus elimination, utilizing microorganisms to degrade organic matter;
(4) Advanced treatment: Sewage enters a sedimentation tank to separate activated sludge, then undergoes enhanced coagulation and sedimentation for phosphorus removal in a high-density sedimentation tank, followed by filtration of fine suspended solids through a V-type filter;
(5) Advanced oxidation and disinfection: The Crown advanced oxidation integrated equipment is used to degrade refractory organic substances, and finally, disinfection is carried out to kill pathogens before the treated water is discharged up to standard.
Application of Crown Advanced Oxidation
Since the sewage from the industrial park has already been treated by individual enterprises, its biochemical degradability is poor (B/C ≤ 0.3), making it difficult for biochemical treatment. Therefore, the RIC-CAT electrocatalytic oxidation process can be used to improve the B/C ratio of the pre-treated sewage from the industrial park, increasing the B/C value to above 0.4. Meanwhile, to ensure stable discharge standards, the IS-TiOx-HA electrocatalytic oxidation process can be employed at the end to guarantee stable COD discharge.
Core Technology
Electrochemical Advanced Oxidation Process
The Crown electrochemical advanced oxidation process features two independently developed electrodes. The RIC-CAT is mainly used to improve the B/C ratio in chemical and pharmaceutical wastewater, enhancing its biochemical degradability; the IS-TiOx-HA has an ultra-high oxidation-reduction potential, specifically for removing refractory large molecular organic substances, ensuring stable and compliant discharge.
1. Ruthenium-iridium/Carbon Nanocomposite Catalytic Electrode (RIC-CAT)
(1) Efficient catalytic oxidation to increase the B/C ratio
Direct electron transfer: The high oxygen evolution potential (>1.6V vs. SHE) of RuIr NPs inhibits side reactions, prioritizing the oxidation of organic substances (such as phenols, antibiotics), transforming refractory large molecular pollutants (BOD/COD < 0.3) into small molecular biodegradable substances (BOD/COD > 0.4).
In-situ generation of reactive oxygen species (ROS):
Anodic reaction: H2O → ·OH + H+ + e− (ruthenium-iridium catalysis reduces the overpotential for ·OH generation). Defect sites on the surface of activated carbon promote the adsorption and decomposition of H2O2 (→ 2·OH), enhancing the free radical chain reaction.
(2) Synchronous electroadsorption-catalysis synergy
Activated carbon physically adsorbs and enriches pollutants (such as hydrophobic organic substances), shortening their distance to RuIr active sites, accelerating interfacial catalytic reactions, and solving the problem of low mass transfer rates in traditional electrodes.
2. Iridium-doped Sub-oxidized Titanium Composite Heterostructure Electrode (IS-TiOx-HA)
(1) High oxidation potential
Iridium inhibits oxygen evolution side reactions, making the electrode more prone to generating hydroxyl radicals (·OH), thereby enhancing the degradation efficiency of organic substances.
(2) The heterostructure can improve performance in the following ways
Enhanced oxidation potential: In the IrO2/Ti4O7 heterojunction, the high oxygen evolution potential of IrO2 inhibits water decomposition, making the electrode more inclined to generate strong oxidizing free radicals (such as ·OH).
Improved charge separation: The energy level difference between different materials can promote interfacial charge transfer (e.g., TiO2@Ti4O7 heterojunction), reducing electron-hole recombination and increasing catalytic efficiency.