Project
GMP Formulation Water
GMP Formulation Water
Pharmaceutical water generally includes several types: drinking water, purified water, water for injection, and sterile water for injection;
Learn More
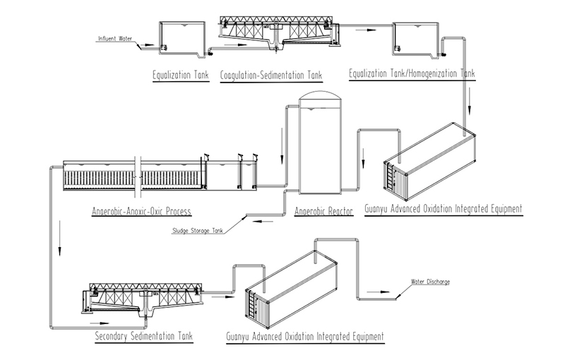
Pharmaceutical Chemical Wastewater Treatment
Pharmaceutical Chemical Wastewater Treatment
Pharmaceutical chemical wastewater refers to the wastewater generated during the production processes of pharmaceuticals and chemicals. It is usually complex in composition, highly toxic, and difficult to degrade, posing a high level of treatment difficulty.
Learn More
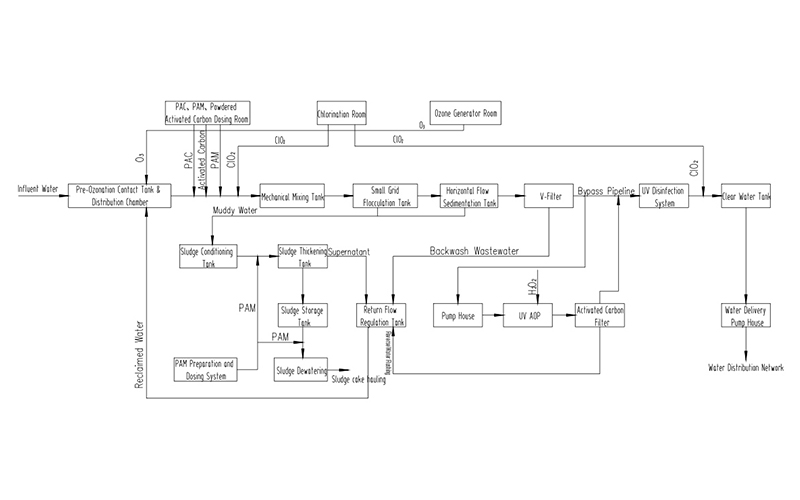
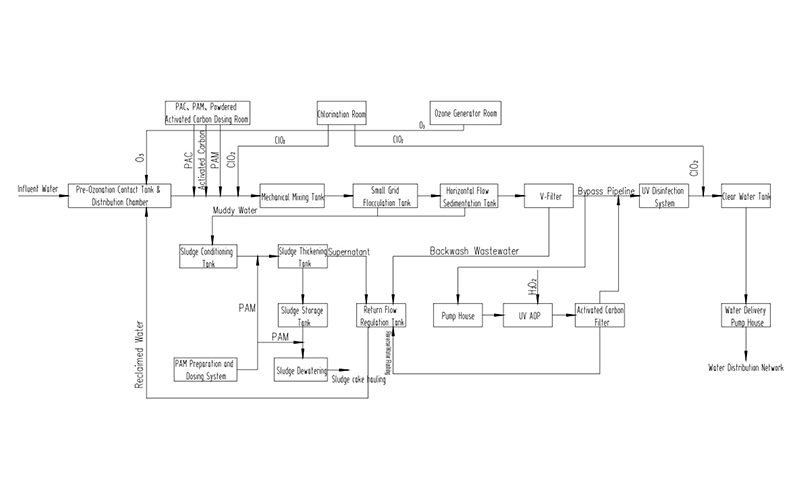
Disinfection and Sterilization in Urban Water Supply
Disinfection and Sterilization in Urban Water Supply
The disinfection process in urban water treatment plants aims to inactivate pathogenic microorganisms in the water (such as bacteria, viruses, and parasites) through physical or chemical methods.
Learn More
Removal of Micro-pollutants in Urban Water Supply
Removal of Micro-pollutants in Urban Water Supply
On March 15, 2022, the national "Hygienic Standard for Drinking Water" GB5749-2022 was released, replacing the original GB5749-2006. The new national standard has adjusted the indicators from the original 106 to 97 items, with 4 new indicators added: geosmin (10ng/L), 2-methylisoborneol (10ng/L), acetochlor (0.02 mg/L), and chlorate (0.7 mg/L).
Learn More
CUSTOMIZED
Demand Communication
The customer must first clearly communicate their specific needs, including pump model, material, operating conditions and any special requirements. This ensures that both parties have a clear understanding of the project requirements.
Technical Evaluation and Design Plan
We need to evaluate the technical requirements and provide design plans and specifications. This stage may require repeated discussions to refine the proposal until the customer is satisfied.
Quotation and Contract Signing
Once the technical plan is determined, we will provide a detailed quotation. After agreeing on the price and payment terms, a contract will be signed outlining the terms and conditions of the project.
Sample Confirmation and Small Batch Production
Before mass production, we usually produce samples or small batches for customer review. If the customer approves the sample, the process will enter large-scale production.
Mass Production and Quality Control
After sample approval, we start mass production, ensuring strict quality control throughout the process to meet customer requirements.
Delivery and After-sales Service
After production is completed, the product is delivered in accordance with the terms of the contract. We also provide the necessary technical support and after-sales service to ensure smooth operation for customers.
CONTACT US NOW !
Demand Communication
Demand Communication
Technical Evaluation and Design Plan
Technical Evaluation and Design Plan
Quotation and Contract Signing
Quotation and Contract Signing
Sample Confirmation and Small Batch Production
Sample Confirmation and Small Batch Production
Mass Production and Quality Control
Mass Production and Quality Control
Delivery and After-sales Service
Delivery and After-sales Service
WeChat