Industrial Circulating Water
Industrial Recirculating Water Scale Removal
Industrial Recirculating Water Scale Removal
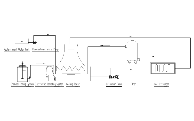
Scale formation in industrial recirculating water refers to the precipitation of salts such as calcium and magnesium from the water due to increased temperature, changes in pH, or evaporation concentration, resulting in the formation of hard deposits on the surfaces of pipes, heat exchangers, and other equipment. Common types of scale include calcium carbonate, calcium sulfate, and silicates. Scale buildup can reduce heat transfer efficiency, increase energy consumption, and even clog pipes, affecting the normal operation of the system. Control methods include water softening, adding scale inhibitors, adjusting pH levels, and regular descaling.
Learn More
CUSTOMIZED
Demand Communication
The customer must first clearly communicate their specific needs, including pump model, material, operating conditions and any special requirements. This ensures that both parties have a clear understanding of the project requirements.
Technical Evaluation and Design Plan
We need to evaluate the technical requirements and provide design plans and specifications. This stage may require repeated discussions to refine the proposal until the customer is satisfied.
Quotation and Contract Signing
Once the technical plan is determined, we will provide a detailed quotation. After agreeing on the price and payment terms, a contract will be signed outlining the terms and conditions of the project.
Sample Confirmation and Small Batch Production
Before mass production, we usually produce samples or small batches for customer review. If the customer approves the sample, the process will enter large-scale production.
Mass Production and Quality Control
After sample approval, we start mass production, ensuring strict quality control throughout the process to meet customer requirements.
Delivery and After-sales Service
After production is completed, the product is delivered in accordance with the terms of the contract. We also provide the necessary technical support and after-sales service to ensure smooth operation for customers.
CONTACT US NOW !
Demand Communication
Demand Communication
Technical Evaluation and Design Plan
Technical Evaluation and Design Plan
Quotation and Contract Signing
Quotation and Contract Signing
Sample Confirmation and Small Batch Production
Sample Confirmation and Small Batch Production
Mass Production and Quality Control
Mass Production and Quality Control
Delivery and After-sales Service
Delivery and After-sales Service
WeChat